• Inicio
  • Quiénes Somos
  • Arquitectas
  • Contacto
  • Inicio
  • Quiénes Somos
  • Arquitectas
  • Contacto
Inicio  /  Bizcaia  / 

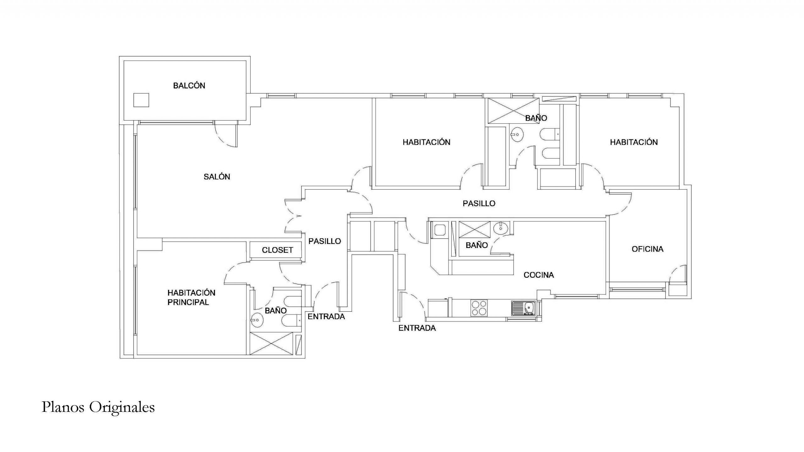
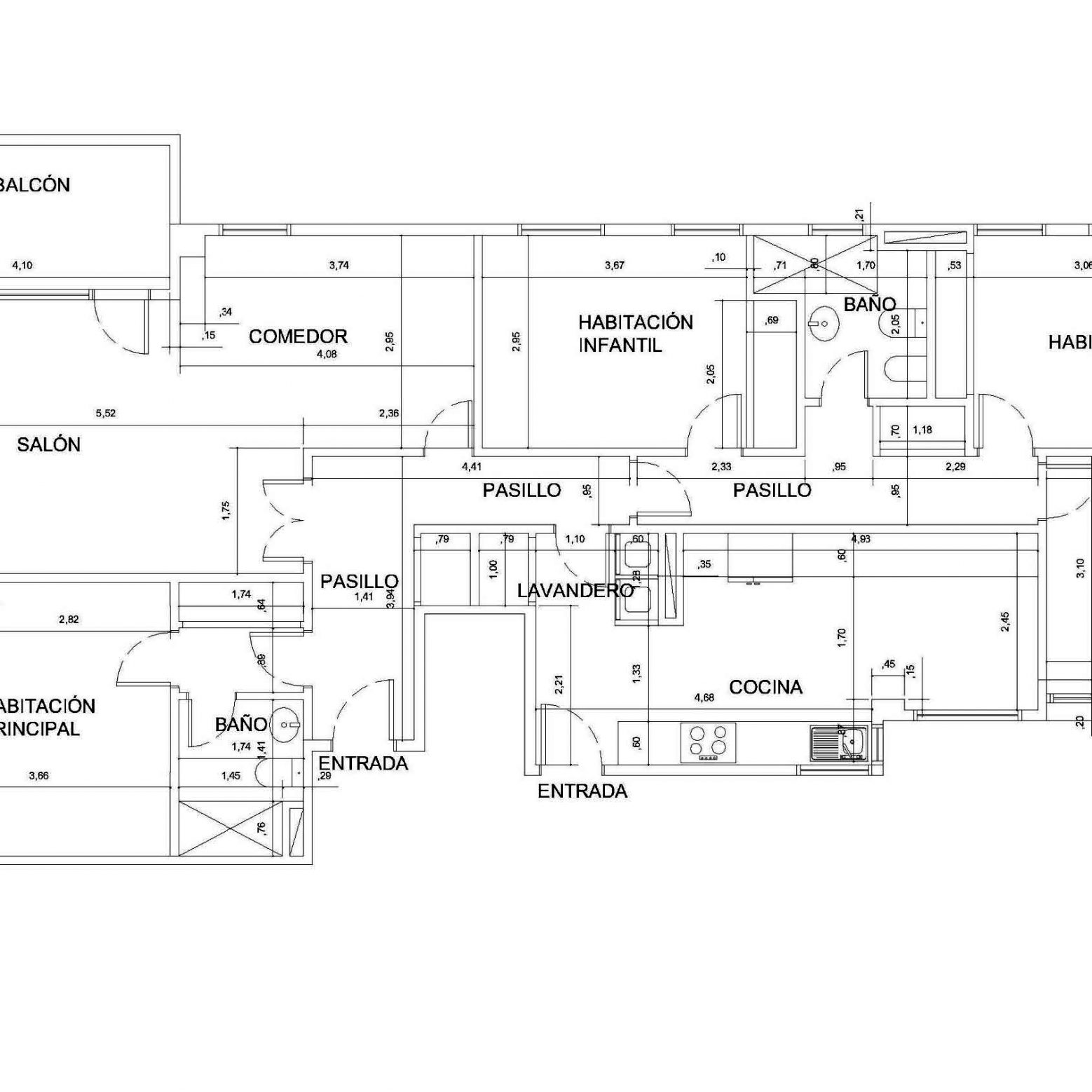
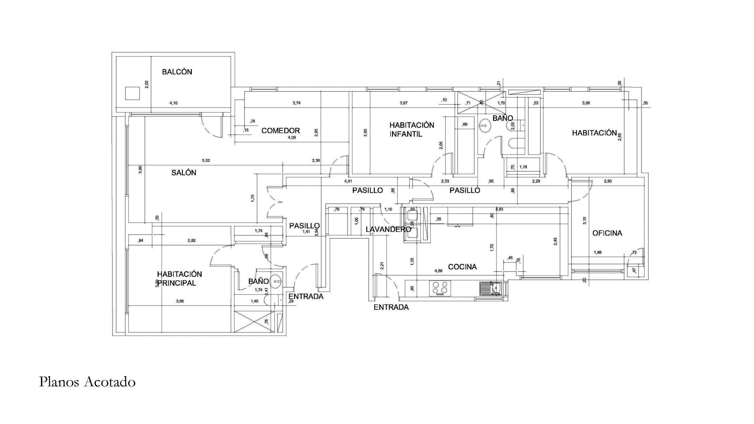
Bicaia Casa 8

Descripción

Información Adicional

Dormitorios:

3

Baños:

2

Tipo:

Plantas

Localización

  • Bizcaia, España

CONFIANZA COMPROBADA

AMPLIA GAMA DE DISEÑOS

HOGARES FELICES

Principales búsquedas

    • Nuestras Arquitectas

    • Proyectos

    • Lo más visto

Mercado en Arquitectos

    • Quiénes Somos

    • Contáctanos

    • Ubicación

Suscribirte al boletín

Breve descripción

Síguenos en:

Facebook Twitter Instagram Whatsapp Youtube