• Inicio
  • Quiénes Somos
  • Arquitectas
  • Contacto
  • Inicio
  • Quiénes Somos
  • Arquitectas
  • Contacto
Inicio  /  Málaga  / 

Málaga 9

  • Villa
  • 5 Rooms
  • 3556 sqft
  • 2015
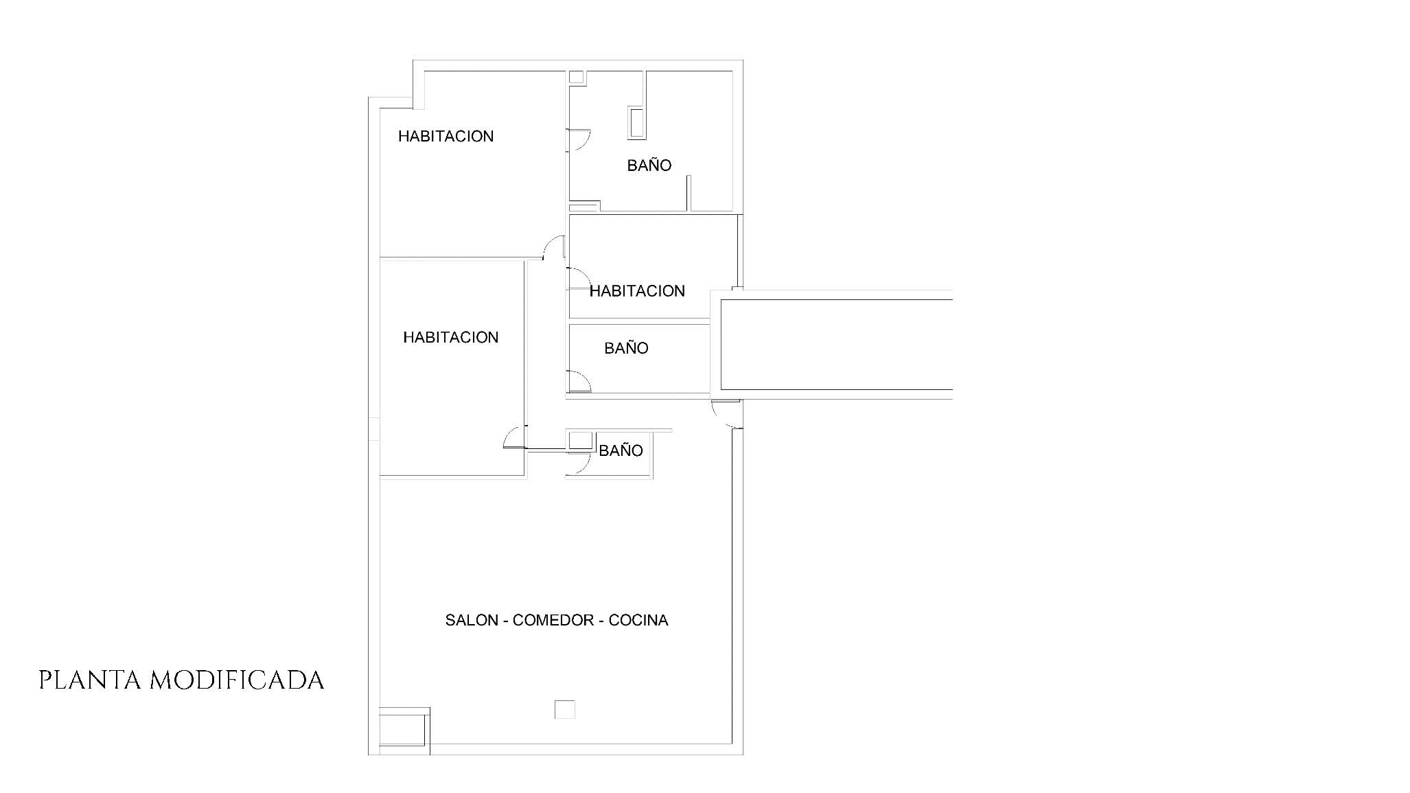
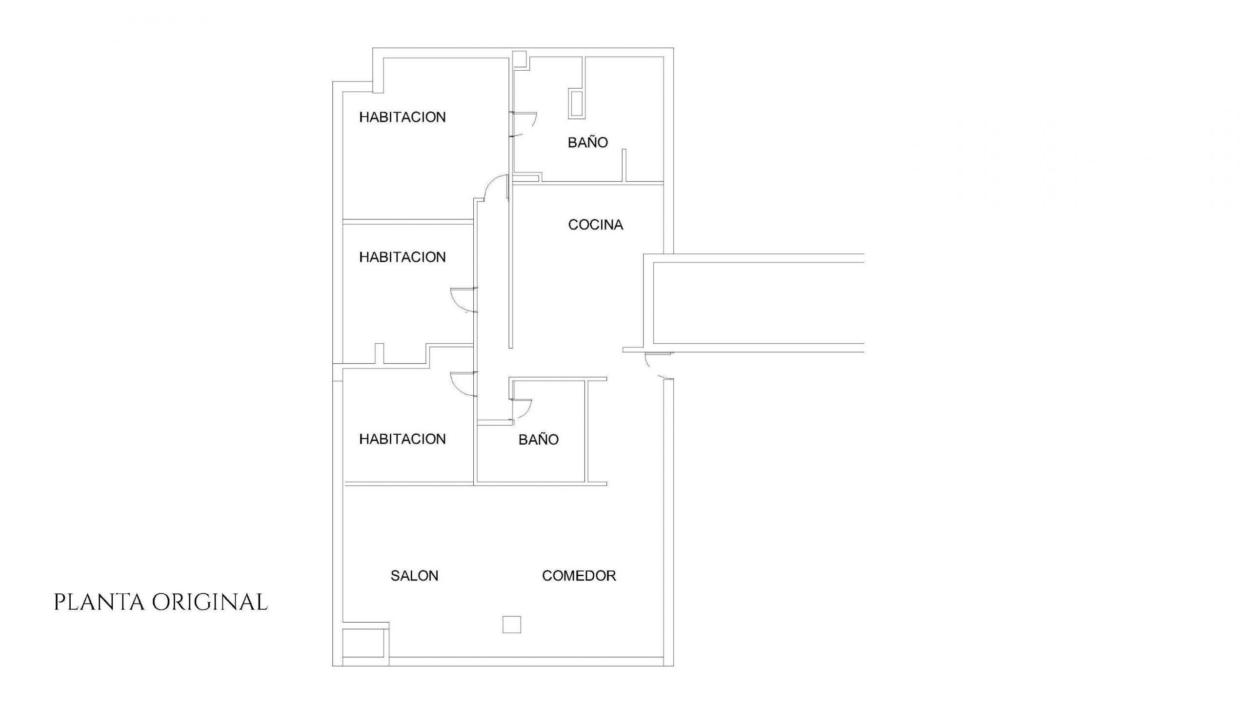
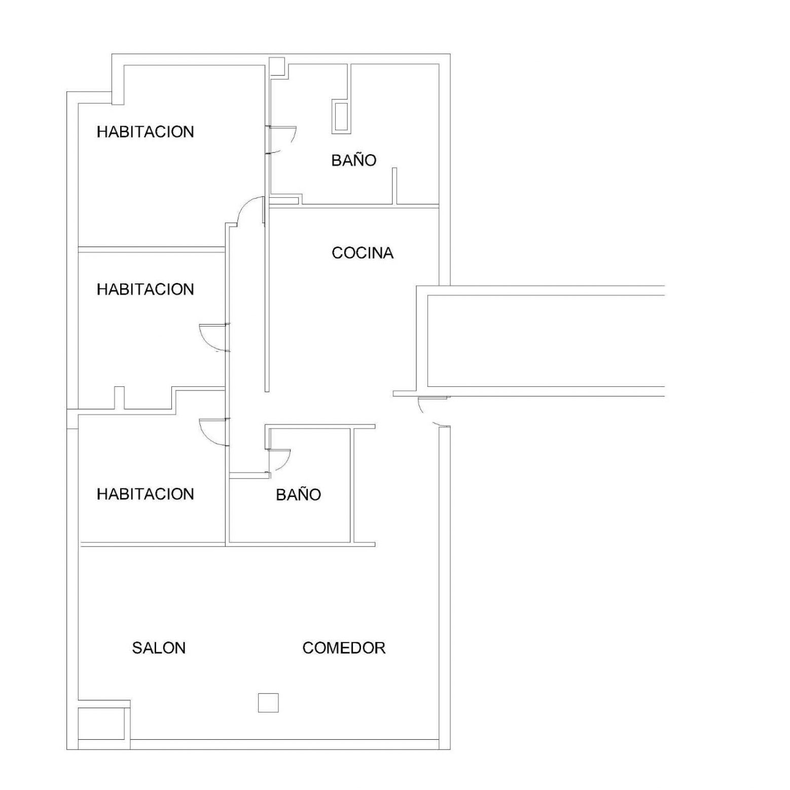
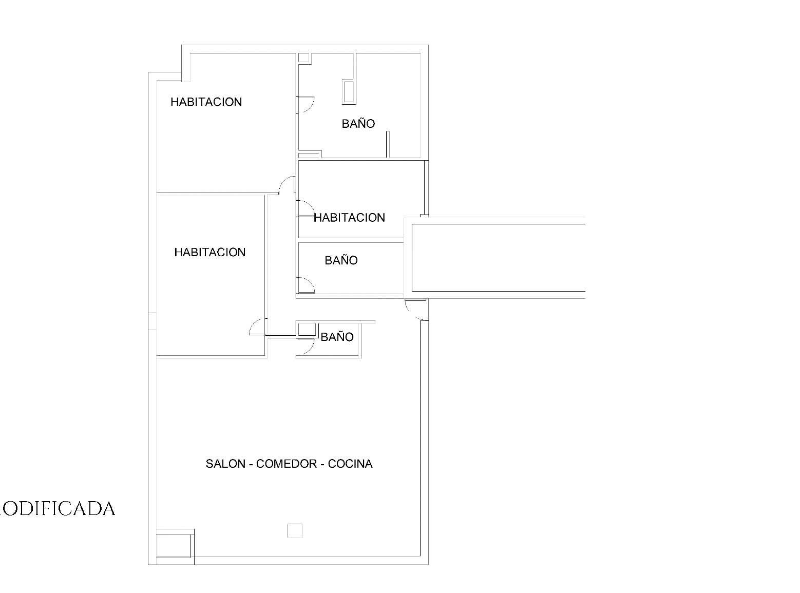
Descripción

Información Adicional

Tipo:

Sala Málaga

Localización

  • Málaga, España

CONFIANZA COMPROBADA

AMPLIA GAMA DE DISEÑOS

HOGARES FELICES

Principales búsquedas

    • Nuestras Arquitectas

    • Proyectos

    • Lo más visto

Mercado en Arquitectos

    • Quiénes Somos

    • Contáctanos

    • Ubicación

Suscribirte al boletín

Breve descripción

Síguenos en:

Facebook Twitter Instagram Whatsapp Youtube