Breve descripción del proyecto
Localización
- Cadiz, calle 3 ejemplo2
Información Adicional
Propiedad:
Propiedad ID:
Deposito:
20%
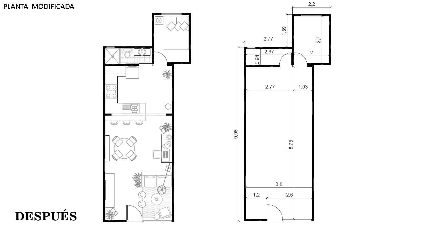
Medidas:
300 m2
Año de construcción:
2016
Comodidades:
Clubhouse
Habitaciones adicionales:
Baños de invitados
Equipamento:
Grill – Gas
Garage:
1, 200 m2
Caracteristicas
- Aire Acondicionado
- TV Cable
- Refrigerador
- Barbacoa
- Ducha jardinera
- Comedor
- Secadores
- Área de lavado
- Revestimiento en Ventanas















